Skip to main content
MHA Library
View All
Search
Shelves
Books
Log in
Info
Content
Books
Archived Executive Dir...
IPCD - Instructor Prof...
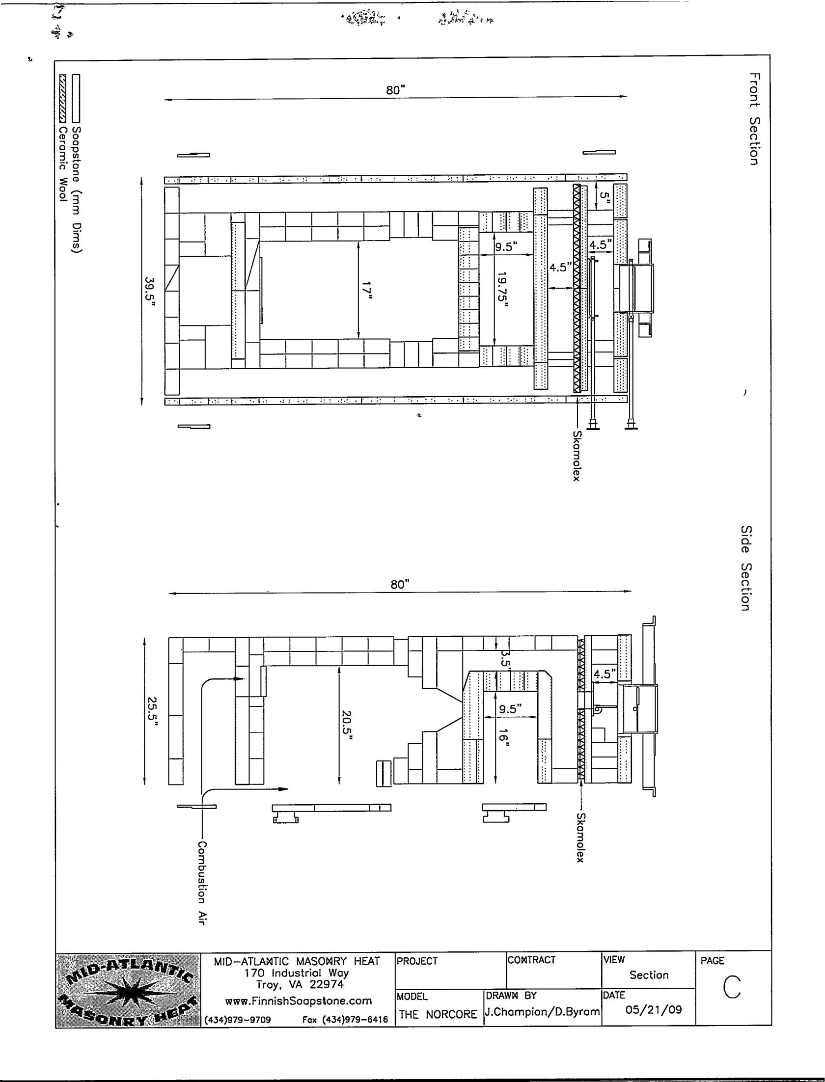
5 run precut heater wi...
5 run precut heater with white oven
Original
5 run precut heater with white oven.pdf
Preview
Enter section select mode
Previous
24x24 Simple Bell Heater Registration
Next
Bricklaying 101
No Comments
Back to top
No Comments